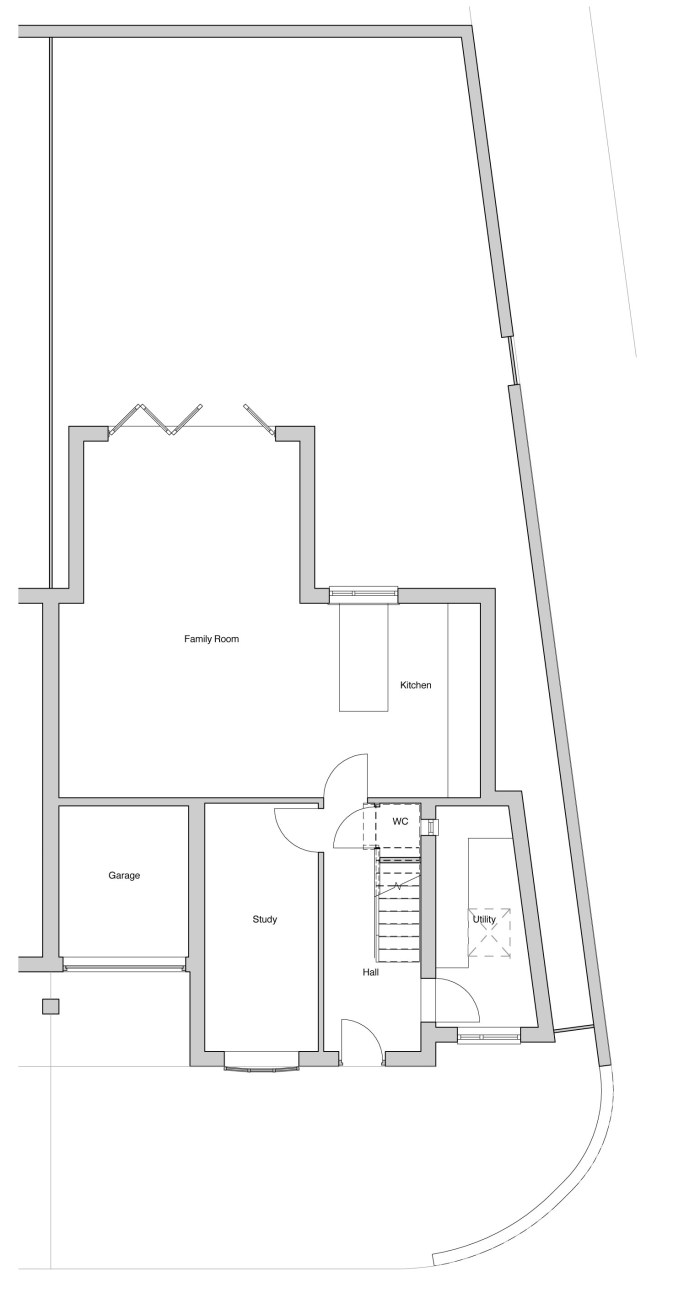
The owner of this 1980s mews property was keen to modernise their ground floor to provide an open-plan living space, improved use of their kitchen and access to their garden and a separate utility space to segregate clutter. Permitted development rights had been revoked on the property at the time of construction which meant that all modifications required a planning application. The solution was a pair of side and rear single storey extensions, replacing the existing conservatory at the rear, enabling the plan to be opened up.
The single storey extension to the side is shaped to follow a splay in the boundary with a tall pitched roof running from front to back.

Bi-folding doors to the new, rear extension provide a focal point from inside and allow light to penetrate deep into the plan.

The kitchen has been relocated to the new open plan living space providing space for a closed off study on the ground floor which can double as a guest bedroom with a double sofa bed.
Key facts:
- Single storey extensions + extensive remodelling to 1980s mews house;
- Single storey side extension to accommodate new utility room;
- Replacement of existing upvc conservatory with a single storey family room extension + associated remodelling;
- Relocation of existing kitchen to improve connection to living space + provide space for a home office.